本帖最後由 333s 於 25-7-22 12:06 編輯
smallabby 發表於 25-7-22 11:02 
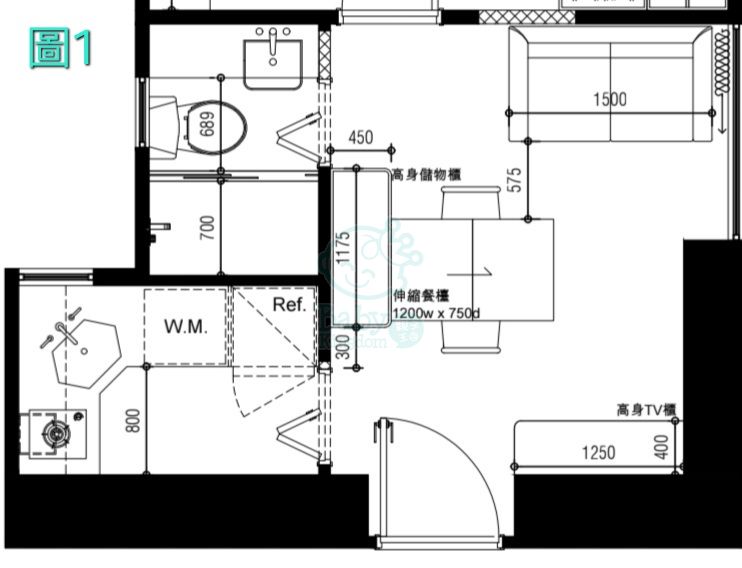
請問大家個廳會揀圖1定圖2設計呀
圖1梳化同電視櫃距離遠d,但個電視櫃得4呎
圖2就冇位放餐枱,要買升降茶几 ...
裝修,便一併計劃未來的需要,一勞永逸。 選擇合適自己的設計款式,又多功能的生活用品。
40—50岁時, 裝修預計 年長 60—80岁需要 :浴室, 廚房。輪椅通過其它房間, 置家私而己。活動性要強。 不合自己時,可扔掉更換。最方便。
家有60歲老人,一定要做「適老化設計」,舒適又省心
預留足夠空間讓輪椅通過,客廳的通道,房間及浴室的門口應造闊一些。
想不開、就別想. 得不到、就不要. 失去了、繼續笑. 擁有了、要珍惜。
快乐不是拥有的多,而是计较的少。
生悶氣,發脾氣,煩躁,焦慮,失眠. 是指因生气(生闷气、怒气、着急上火生成的火气、思虑生成的郁气)。
理性討論交流者。