家事百科

跳至

首頁
1

尾頁
   0


大宅

積分: 1698

BK Milk勳章


1#
發表於 11-2-21 14:41 |只看該作者

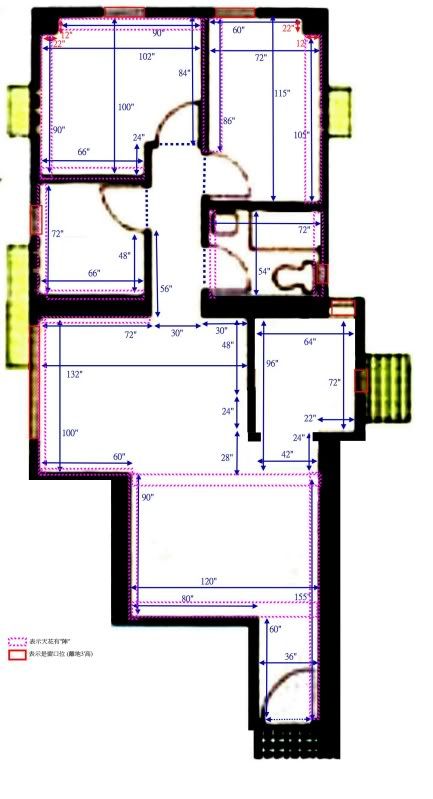
有冇人可以幫我設計下點樣擺位,
主要係個廚房同個廳.
最煩係人多, 雜物多, 同埋有部琴.
仲想有張梗左既餐桌.
最細的房是書房, 有需要保留.
麻煩俾俾意見, thanks!

**粉紅虛線為天花板的"陣"
**紅色是窗口

[ 本帖最後由 xspeed 於 11-2-21 14:42 編輯 ]


子爵府

積分: 11908


2#
發表於 11-2-21 15:15 |只看該作者
你e種情況,建議搵d細既設計樓搞,至於設計完幫唔幫襯佢,就睇價錢啦
he he


象牙宮

積分: 233695


3#
發表於 11-2-22 10:18 |只看該作者
你的傾向 係 a or b ?

a. 簡約; 慳位; 留多空間.

b. 多家私?


大宅

積分: 1698

BK Milk勳章


4#
發表於 11-2-22 12:00 |只看該作者
a. 簡約; 慳位; 留多空間.

原帖由 333s 於 11-2-22 10:18 發表
你的傾向 係 a or b ?

a. 簡約; 慳位; 留多空間.

b. 多家私?


首頁
1

尾頁

跳至
Presslogic Logo
Baby Kingdom Logo